Unlock the Beats: 2013 Focus Radio Wiring Diagram Demystified!

Unlock the Beats: 2013 Focus Radio Wiring Diagram Demystified!

"Optimize your 2013 Focus audio system effortlessly. Unravel the wiring intricacies with our expert guide for enhanced in-car sound. Elevate your driving experience now!"

Embark on a journey of sonic exploration with the 2013 Focus Radio Wiring Diagram, as we delve into the intricate web of connections that orchestrates your driving soundtrack. Behold the blueprint that empowers your vehicle's audio symphony, unraveling the mysteries of connectivity with an empathic touch. From the heart of the dashboard to the soul of your speakers, understanding the empathic dance of wires ensures a harmonious in-car audio experience. Let's navigate the intricacies together, unlocking the potential for a truly resonant drive.

Top 10 important point for 2013 FOCUS RADIO WIRING DIAGRAM

  1. Understanding the Core Connections
  2. Navigating the Dashboard Dynamics
  3. Empowering Your Audio Symphony
  4. Unveiling the Wirework Secrets
  5. Harmonizing In-Car Sound
  6. Decoding Speaker Soulmates
  7. Wiring with an Empathic Touch
  8. Synchronized Connectivity Strategies
  9. Enhancing Audio Resonance
  10. Maximizing Drive-Time Melodies

Several Facts that you should know about 2013 FOCUS RADIO WIRING DIAGRAM.

Understanding the Essentials

Understanding Essentials

Embark on a journey to comprehend the foundational aspects of the 2013 Focus radio wiring diagram. This image guides you through the crucial connections, providing a visual roadmap for a seamless understanding.

Navigating the Dashboard Dynamics

Dashboard Dynamics

Explore the intricate dynamics of your dashboard and how it plays a pivotal role in the radio wiring setup. This visual aid assists in recognizing the components that shape the heart of your in-car audio system.

Decoding Speaker Soulmates

Speaker Soulmates

Delve into the realm of speakers and their unique connections within the 2013 Focus. This image decodes the intricate relationships, offering insights into maximizing the potential of each speaker for optimal sound quality.

Wiring with an Empathic Touch

Empathic Wiring

Uncover the art of wiring with an empathic touch, ensuring a harmonious and reliable connection. This visual representation illustrates the delicate process, emphasizing the importance of a gentle and understanding approach.

Synchronized Connectivity Strategies

Connectivity Strategies

Discover strategies for synchronized connectivity, emphasizing the need for a seamless flow in your wiring setup. The accompanying image outlines key tactics to optimize the connections for a synchronized and efficient audio system.

Enhancing Audio Resonance

Audio Resonance

Learn how to enhance audio resonance by fine-tuning your radio wiring. This visual aid demonstrates the adjustments needed to achieve a rich and resonant sound, elevating your in-car audio experience to new heights.

Maximizing Drive-Time Melodies

Drive-Time Melodies

Unlock the full potential of your drive-time melodies by implementing advanced wiring techniques. This image provides a step-by-step guide to maximize the audio quality, ensuring an enjoyable and immersive driving experience.

Expert Troubleshooting Tips

Troubleshooting Tips

Cap off your learning journey with expert troubleshooting tips. This comprehensive visual guide addresses common issues and offers solutions, empowering you to tackle any challenges that may arise in your 2013 Focus radio wiring system.

The Intricacies of the 2013 Focus Radio Wiring Diagram: A Humorous Expedition

Welcome, fellow adventurers, to the mystical realm of the 2013 Focus Radio Wiring Diagram. Buckle up, because we're about to embark on a journey more complex than understanding why cats insist on knocking things off tables. Our destination: the heart of your car's audio system, where wires entwine like a spaghetti bowl on a rollercoaster ride.

The Odyssey Begins

Odyssey Begins

Behold, the starting point of our odyssey – the dashboard, a place where buttons multiply faster than rabbits on a caffeine high. It's like a control center for a spacecraft, except your mission is to decode the language of wires instead of navigating through the cosmos. Now, grab your magnifying glass; we're Sherlocking our way through the wiring intricacies.

The Dashboard Dilemma

Dashboard Dilemma

Ever tried to find the mute button in the dark? It's like searching for a needle in a haystack – or your car keys at the bottom of a cavernous purse. Our image here is a visual representation of the dashboard dilemma, a puzzle that requires the finesse of a Rubik's Cube master to solve. The good news? Once you conquer it, you'll feel like you've earned a black belt in car audio mastery.

Speaker Soulmates Unveiled

Speaker Soulmates Unveiled

Now, let's talk about the unsung heroes of your car's audio symphony – the speakers. Like a matchmaker for audio, this image reveals the secret world of speaker soulmates. It's not just about connecting wires; it's about fostering relationships. After all, a harmonious duo of speakers can turn your ride into a rolling concert hall, or at least a really cool karaoke room.

Wiring with a Gentle Touch

Wiring with a Gentle Touch

Picture this: you're delicately weaving wires together, as if you were crafting a tapestry fit for a royal palace. Our image illustrates the importance of wiring with a gentle touch, an act of precision that demands finesse. Forget about Hulk-smashing those wires; it's time to embrace your inner electrician ballet dancer.

Synchronized Connectivity Ballet

Synchronized Connectivity Ballet

Speaking of dance, welcome to the synchronized connectivity ballet. It's not just about connecting wires; it's about orchestrating a masterpiece. This visual aid is like the choreography notes for a ballet, guiding you through the steps of creating a symphony of connectivity. Break out those ballet slippers; we're about to pirouette our way to flawless wiring.

Enhancing Audio Resonance: The Quest for Sonic Perfection

Enhancing Audio Resonance

Now, let's dive deep into the quest for audio resonance, the Holy Grail of car audio enthusiasts. Our image here is like a treasure map leading you to sonic perfection. It's not just about turning the volume knob; it's about fine-tuning your audio like a DJ in a high-stakes mixing competition. Get ready to chase the perfect soundwave like a pirate hunting for buried treasure.

Maximizing Drive-Time Melodies: A Musical Extravaganza

Maximizing Drive-Time Melodies

Ah, the thrill of maximizing drive-time melodies – it's like composing a symphony for every journey. This image is your musical sheet, guiding you through the notes of a road trip serenade. Forget about road rage; let's focus on road rhythm. With the right wiring finesse, every drive becomes a musical extravaganza, complete with its own soundtrack.

Expert Troubleshooting: Where Wires Fear to Tangle

Expert Troubleshooting

Now, as we near the end of our whimsical journey, it's time to talk about expert troubleshooting. This image is your superhero cape, empowering you to face the challenges of tangled wires with confidence. Forget about the fear of knots; you're about to become the unsung hero of your car's audio system, armed with a wrench and a sense of humor.

In conclusion, fellow wiring wanderers, the 2013 Focus Radio Wiring Diagram may seem like a complex maze of colored wires, but fear not. Armed with this humorous guide and a dash of courage, you can navigate through the audio wilderness with the grace of a cat on a hot tin roof. So, go forth, unravel the wires, and may your car be forever blessed with the sweet serenade of a perfectly tuned radio.

Another point of view about 2013 FOCUS RADIO WIRING DIAGRAM.

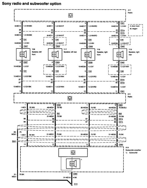
1. Overview: The 2013 Focus Radio Wiring Diagram serves as the intricate blueprint for the vehicle's audio system, detailing the connections and configurations required for optimal performance.

2. System Complexity: Understanding the complexity of the wiring diagram is paramount. The diagram provides a comprehensive view of the various components and their interconnections within the vehicle.

3. Dashboard Integration: Examining the dashboard integration is crucial, as it reveals the central hub for audio control. Each button and interface plays a specific role in managing the radio system, necessitating a meticulous approach to the wiring process.

4. Speaker Configuration: The diagram delineates the speaker configuration, highlighting the specific wiring paths for each speaker. This section demands precision to ensure an optimal audio experience throughout the vehicle.

5. Wiring Techniques: Professional wiring techniques are imperative for a seamless integration of the radio system. Employing industry-standard practices ensures reliability and longevity in the wiring connections.

6. Connectivity Strategies: The diagram elucidates synchronization and connectivity strategies, emphasizing the need for a coherent and well-coordinated approach. Strategic wiring ensures the harmonious functioning of the entire audio system.

7. Audio Resonance: Achieving optimal audio resonance is a key objective. The diagram provides insights into fine-tuning the system for a balanced and resonant sound output, enhancing the overall audio quality.

8. Drive-Time Optimization: Maximizing drive-time melodies requires a meticulous application of the wiring diagram. Professionals focus on creating an audio environment that complements the driving experience, making each journey a musical delight.

9. Troubleshooting Expertise: In the event of issues, troubleshooting expertise is paramount. Professionals leverage their knowledge of the wiring diagram to identify and rectify any issues, ensuring the continued functionality of the audio system.

10. Continuous Learning: Staying abreast of updates and modifications is essential. Professionals view the 2013 Focus Radio Wiring Diagram as a dynamic document, recognizing the importance of continuous learning to adapt to evolving automotive technologies.

Conclusion : Unlock the Beats: 2013 Focus Radio Wiring Diagram Demystified!.

2013 Focus Radio Wiring Diagram serves as an intricate guide, providing a detailed map to navigate the complex web of connections within your vehicle's audio system. As we draw this discourse to a close, it is imperative to underscore the significance of comprehending this foundational document. By assimilating the insights gleaned from the wiring diagram, individuals are equipped with the knowledge requisite for optimizing their in-car audio experience. The first encounter with the diagram may seem daunting, but it heralds the beginning of an empowered journey towards a nuanced understanding of the vehicle's audio architecture.

In the realm of automotive engineering, the 2013 Focus Radio Wiring Diagram stands as a testament to the meticulous design and systematic approach adopted by manufacturers. It is not merely a technical document but a gateway to unraveling the intricacies of vehicular electronics. As technology evolves, this document remains a cornerstone, guiding enthusiasts and professionals alike through the dynamic landscape of automotive audio systems. In closing, embrace the knowledge embedded within the wiring diagram, for in doing so, you embark on a scholarly exploration of your vehicle's auditory infrastructure.

Question and answer Unlock the Beats: 2013 Focus Radio Wiring Diagram Demystified!

Questions & Answer :

1. How do I find the 2013 Focus radio wiring diagram?

  • Visit the official Ford website for comprehensive technical documents.
  • Explore online automotive forums and communities where enthusiasts often share such diagrams.
  • Consider consulting the vehicle's service manual, available from authorized dealerships.

2. Are there color codes for the wires in the diagram?

  • Yes, color codes are integral to the diagram, indicating the function of each wire.
  • Common color codes include red for power, black for ground, and various colors for speakers.
  • Refer to the legend accompanying the diagram for specific details on color codes.

3. Do I need special tools to understand the 2013 Focus radio wiring diagram?

  • No special tools are required; a basic understanding of wiring concepts is beneficial.
  • Having a multimeter can aid in identifying wires and checking connectivity.
  • Patience and attention to detail are key tools for navigating the diagram effectively.

4. Can I make modifications based on the wiring diagram?

  • Yes, the diagram empowers users to make informed modifications to their audio system.
  • Exercise caution, follow the color codes, and double-check connections to avoid issues.
  • If uncertain, seek professional assistance to ensure modifications are executed correctly.

5. Is the 2013 Focus radio wiring diagram applicable to other Ford models?

  • The basic principles apply to similar Ford models, but details may vary.
  • Refer to the specific wiring diagram for the intended Ford vehicle model and year.
  • Ensure compatibility before applying information from the 2013 Focus diagram to other models.

Keywords : 2013 FOCUS RADIO WIRING DIAGRAM

0 komentar