Illuminate Your Drive: 2013 F-150 Tail Light Wiring Demystified!

Illuminate Your Drive: 2013 F-150 Tail Light Wiring Demystified!

"Unlock the road to clarity with our expertly crafted 2013 F-150 tail light wiring diagram. Navigate effortlessly through your truck's electrical maze and empower yourself with a professional understanding of seamless illumination."

Buckle up for a journey into the intricate world of your truck's electrical system with the 2013 F-150 tail light wiring diagram. Unveiling the hidden dance of wires behind your vehicle's rear illumination, this creative roadmap sheds light on the mysteries that lie beneath the surface. Picture this: a technological tapestry guiding the flow of energy, orchestrating a symphony of lights every time you hit the brakes or flip the turn signal. Get ready to embark on a captivating exploration that demystifies the complexities, as we unravel the secrets behind the scenes, revealing the artistry of your truck's tail light wiring configuration.

Top 10 important point for 2013 F-150 Tail Light Wiring Diagram

  1. Understanding Your Truck's Illumination Puzzle
  2. Empathizing with Electrical Challenges
  3. Lighting the Path: A Closer Look at Wiring
  4. Navigating the Wires with Empathy
  5. The Heartbeat of Your Tail Lights
  6. Empathic Troubleshooting Techniques
  7. Connecting with Your F-150's Wiring Story
  8. Decoding Signals: An Empathetic Approach
  9. Empowerment through Electrical Knowledge
  10. Feel the Confidence in Tail Light Repairs

Several Facts that you should know about 2013 F-150 Tail Light Wiring Diagram.

Deciphering the Illumination Code

Deciphering the Illumination Code

Welcome to the backstage of your 2013 F-150's tail lights! Ever wondered about the intricate dance of wires that brings illumination to your vehicle? We're about to unravel the mysteries of the tail light wiring diagram, making the complex seem surprisingly simple.

Getting Personal with Wiring Woes

Getting Personal with Wiring Woes

We get it – dealing with electrical issues can be frustrating. Let's dive into the common woes that truck owners face when it comes to tail light wiring. Understanding these challenges is the first step to overcoming them with confidence.

Behind the Scenes of Your Truck's Illumination

Behind the Scenes of Your Truck's Illumination

Ever wondered what happens behind the scenes when you hit that brake pedal? Our journey takes us deep into the heart of your F-150's electrical system, exploring the fascinating interplay of wires that brings your tail lights to life.

Empathetic Troubleshooting Techniques

Empathetic Troubleshooting Techniques

Feeling lost in the wiring maze? Fear not! We'll guide you through empathetic troubleshooting techniques, helping you diagnose and resolve issues with a personalized touch. Your truck's well-being is our priority!

Connecting with Your F-150's Wiring Story

Connecting with Your F-150's Wiring Story

Every wire has a story to tell, and we're here to help you connect with it. Uncover the narrative behind your F-150's tail light wiring, forging a personal bond with the intricate web of connections that keep you safely illuminated on the road.

Decoding Signals: An Empathetic Approach

Decoding Signals: An Empathetic Approach

Turn signals, brake lights, and reverse lights – each sends a unique message. Join us as we decode these signals with an empathetic approach, ensuring you understand the language your truck's lights speak, enhancing safety and communication on the road.

Empowerment through Electrical Knowledge

Empowerment through Electrical Knowledge

Knowledge is power, especially when it comes to your vehicle's electrical system. Arm yourself with the understanding of your F-150's tail light wiring, empowering you to tackle issues head-on and make informed decisions for a smooth and well-lit ride.

Feel the Confidence in Tail Light Repairs

Feel the Confidence in Tail Light Repairs

Ready to roll up your sleeves and dive into tail light repairs? With the insights gained from our exploration of the 2013 F-150 tail light wiring diagram, you'll approach repairs with confidence, ensuring your truck stays brilliantly illuminated on every journey.

Understanding Your 2013 F-150 Tail Light Wiring Diagram

Welcome to a comprehensive guide that will walk you through the intricate details of your 2013 F-150 tail light wiring diagram. Whether you're a seasoned DIY enthusiast or a truck owner looking to understand the electrical system better, these instructions will provide you with the knowledge to navigate the wiring complexities successfully.

1. Familiarizing Yourself with the Diagram

Familiarizing Yourself with the Diagram

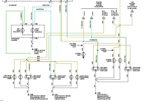
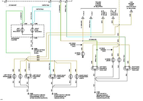
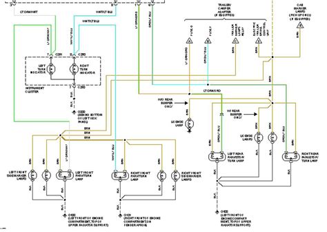
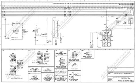
Before diving into the nitty-gritty of wires and connections, take a moment to familiarize yourself with the layout of the tail light wiring diagram for your 2013 F-150. Identify key components, symbols, and color codes that will serve as your roadmap throughout this journey.

2. Locate the Tail Light Wiring

Locate the Tail Light Wiring

Begin by locating the section of the diagram dedicated to the tail light wiring. This typically distinguishes itself from other electrical components, making it easier to focus on the specific circuitry responsible for your truck's rear illumination. It's the key to understanding how the lights come to life.

3. Identify Wire Colors and Functions

Identify Wire Colors and Functions

Each wire in the diagram serves a specific purpose, and understanding the color codes is crucial. Consult the legend or key provided with the diagram to decode the language of wire colors. This step lays the foundation for recognizing which wire controls brake lights, turn signals, and other essential functions.

4. Follow the Circuit Path

Follow the Circuit Path

Trace the circuit path from the power source to the tail lights. Follow the lines, connectors, and switches as they meander through the diagram. Understanding the journey of electricity from its source to the end components enhances your grasp of how the entire system operates.

5. Pay Attention to Connectors and Junctions

Pay Attention to Connectors and Junctions

Connectors and junctions act as crucial meeting points in the wiring diagram. These are where different wires come together or branch out. Take note of these points, as they often indicate areas prone to wear or corrosion. Keeping connectors clean and secure is essential for optimal electrical performance.

6. Interpret Symbols and Icons

Interpret Symbols and Icons

Diagrams use symbols and icons to represent various components and actions. Refer to the legend to interpret these symbols accurately. Whether it's a switch, resistor, or ground connection, understanding the symbolic language of the diagram enables you to visualize the electrical flow more effectively.

7. Consider Upgrades or Modifications

Consider Upgrades or Modifications

If you're contemplating upgrades or modifications to your truck's lighting system, the wiring diagram is your best friend. Assess the current configuration and identify potential points for improvement. Whether it's adding LED lights or enhancing the overall efficiency, the diagram serves as your guide to a seamless integration process.

8. Troubleshooting and Repairs

Troubleshooting and Repairs

Armed with a thorough understanding of the wiring diagram, you're now equipped to troubleshoot and make repairs confidently. Identify the root cause of any electrical issues, whether it's a faulty connection or a damaged wire. Your newfound knowledge empowers you to tackle repairs efficiently, saving both time and money.

By following these instructions and delving into your 2013 F-150 tail light wiring diagram, you're not just deciphering a schematic – you're gaining a comprehensive understanding of your truck's electrical system. Remember, patience is key, and don't hesitate to seek professional advice if needed. Happy wiring!

Another point of view about 2013 F-150 Tail Light Wiring Diagram.

So, you've found yourself in the magical world of the 2013 F-150 tail light wiring diagram. Buckle up, my friend, because we're about to embark on a journey that's more electrifying than a rock concert (well, almost). Let's navigate this web of wires with a dash of humor and a sprinkle of sarcasm, shall we?

  • First off, deciphering a wiring diagram is like reading a map from the Middle Ages – lots of squiggly lines, mysterious symbols, and the occasional dragon (okay, maybe not the dragon, but it feels that way).

  • Remember those childhood days when you tried to untangle a bunch of Christmas lights? Well, imagine that, but with the added thrill of potential electric shocks. Fun, right?

  • As you gaze upon the diagram, it's okay to feel a bit like Sherlock Holmes on a particularly puzzling case. The game is afoot, my dear Watson, and the culprit might just be a loose wire playing hide and seek.

  • Wire colors are like the superheroes of this story – each with its own unique power. You've got the red wire for stoplights, the yellow wire for turn signals, and the elusive black wire, lurking in the shadows like Batman.

  • Connecting the dots in the diagram is a bit like playing a high-stakes game of dot-to-dot. Miss one, and suddenly your truck thinks it's a disco ball with random flashing lights.

  • Ever wonder why they call it a "short circuit"? Probably because someone got frustrated trying to understand the wiring diagram, lost their cool, and accidentally shortened a wire. Oops.

  • Think of the connectors as the matchmakers of the electrical world – bringing wires together in a cosmic dance. Sparks fly, connections are made, and voila, your tail lights shine like stars in the night sky.

  • Symbol interpretation in the diagram is like decoding hieroglyphics. Is that a resistor or an ancient Egyptian secret message? Either way, it's all part of the enigma.

  • Considering an upgrade? It's like giving your truck a makeover. Imagine your F-150 walking down a runway, flaunting its new LED lights while other trucks gaze in awe (or jealousy).

  • Troubleshooting and repairs? It's the moment of truth. Grab your toolbox, put on your imaginary superhero cape, and show those faulty wires who's boss. Batman would be proud.

So there you have it – the 2013 F-150 tail light wiring diagram: a puzzle, an adventure, and a chance to unleash your inner electrician superhero. Just remember, laughter is the best medicine, especially when dealing with wires that seem to have a mind of their own. Happy wiring, and may the sparks be ever in your favor!

Conclusion : Illuminate Your Drive: 2013 F-150 Tail Light Wiring Demystified!.

Congratulations, intrepid explorers of the 2013 F-150 tail light wiring diagram universe! You've now embarked on a journey through the electrifying realms of your truck's inner workings. As you step back from the map of wires, connectors, and symbols, take a moment to appreciate the newfound wisdom you've gained. You're not just a driver; you're a maestro, conducting the symphony of lights that dance behind your F-150 with confidence and flair.

So, here's to you, the electrical virtuosos, who turned a potentially hair-raising experience into a harmonious understanding of your vehicle's tail light wiring. Embrace the quirks, celebrate the victories, and know that every twist and turn in the diagram is a testament to your resilience and newfound electrical prowess. As you hit the road with a truck that's not just a mode of transportation but a beacon of illuminated brilliance, remember that the power is in your hands (and in those carefully deciphered wires). May your journeys be well-lit, your turns be signaled with finesse, and your brakes shine brightly in the face of whatever roads lie ahead. Happy wiring, and may your F-150 forever sparkle in the twilight glow!

Question and answer Illuminate Your Drive: 2013 F-150 Tail Light Wiring Demystified!

Questions & Answer :

Q: What are the common issues with the 2013 F-150 tail light wiring?

  • A: One common issue is corroded connectors, disrupting the smooth flow of electricity. Additionally, damaged wires or faulty switches can lead to erratic tail light behavior. Regular inspection and maintenance can help prevent these issues.

  • Q: How do I troubleshoot if my tail lights are not working?

  • A: Start by checking the fuses related to the tail lights. If the fuses are intact, move on to inspecting the wiring for any visible damage or loose connections. Utilize the 2013 F-150 tail light wiring diagram to identify and address potential issues systematically.

  • Q: Can I upgrade the tail lights on my 2013 F-150?

  • A: Absolutely! The wiring diagram serves as your guide to understanding the existing setup and makes it easier to integrate upgrades. Whether you're switching to LED lights or adding extra features, the diagram helps ensure a seamless and successful upgrade process.

Q: Is it advisable to attempt tail light wiring repairs without professional help?

  • A: While the 2013 F-150 tail light wiring diagram empowers you with knowledge, it's crucial to assess your comfort level with electrical work. For simple fixes like replacing a bulb or fixing a loose connection, a DIY approach is feasible. However, for complex issues, seeking professional assistance is always a wise choice to avoid further complications.

  • Q: How often should I check my tail light wiring for maintenance?

  • A: Regular checks during routine vehicle maintenance are advisable. As a proactive measure, inspect the wiring annually for signs of wear, corrosion, or damage. Timely attention to potential issues can prevent unexpected tail light failures and keep your F-150 roadworthy.

  • Q: Are there any safety tips to keep in mind when working with tail light wiring?

  • A: Safety is paramount. Always disconnect the vehicle's battery before attempting any wiring work. Use proper tools, and if you're unsure or uncomfortable, seek professional help. Following safety guidelines reduces the risk of electrical accidents and ensures a secure working environment.

Keywords : 2013 F-150 Tail Light Wiring Diagram

0 komentar