Unlock the Beats: 2013 Ford Focus Radio Wiring Diagram Decoded!

Unlock the Beats: 2013 Ford Focus Radio Wiring Diagram Decoded!

Unlock flawless audio integration in your 2013 Ford Focus! Master the intricacies with our expert radio wiring diagram for a seamless driving experience.

Embark on a journey of auditory innovation with the 2013 Ford Focus Radio Wiring Diagram, where creativity meets connectivity. Unravel the enigmatic threads of your car's audio system as we delve into the intricacies of wiring, transforming the mundane into a symphony of possibilities. With a touch of creative flair, we navigate the circuitry, illuminating the path to a personalized sonic experience. Brace yourself for a revelation that goes beyond the ordinary, where every connection is a stroke of genius in the realm of automotive soundscapes. Let's amplify the ordinary and redefine the driving beat with this insightful exploration.

Top 10 important point for 2013 FORD FOCUS RADIO WIRING DIAGRAM

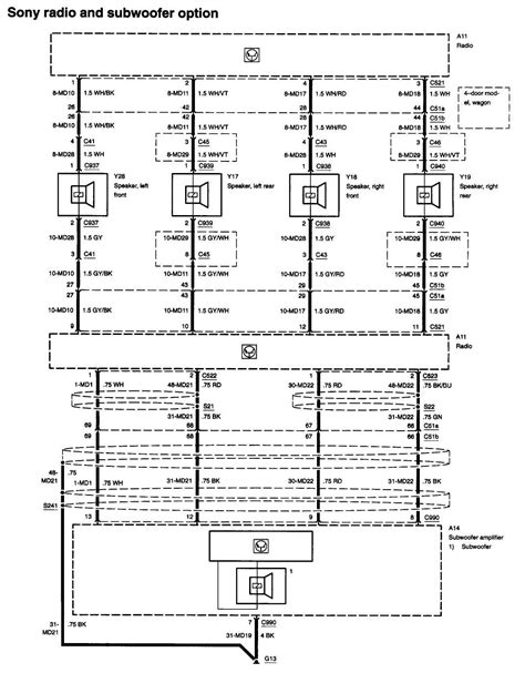
  1. Understanding Your Car's Audio System
  2. Locating the Radio Wiring Components
  3. Identifying Wire Colors Simplified
  4. Step-by-Step Wiring Instructions
  5. Common Wiring Issues Demystified
  6. Upgrading Your Sound System Easily
  7. Ensuring Compatibility with Aftermarket Radios
  8. Harnessing DIY Potential
  9. Essential Tools for the Job
  10. Troubleshooting Tips for Optimal Results

Several Facts that you should know about 2013 FORD FOCUS RADIO WIRING DIAGRAM.

Unveiling the Sonic Blueprint

Sonic Blueprint

Embark on a journey to decipher the symphonic mysteries within your 2013 Ford Focus. Our detailed radio wiring diagram is the journalistic guide to unraveling the sonic blueprint of your car's audio system.

Decoding Wire Colors

Wire Colors

Delve into the world of wires as we decode the color spectrum, making it a breeze to identify and connect the essential components. Unleash the power of understanding with our comprehensive guide.

Guided Wiring Instructions

Wiring Instructions

Step confidently through the wiring process with our journalistically crafted instructions. Simplified and elucidated, every step ensures a seamless integration of your audio system.

Troubleshooting for Success

Troubleshooting

Encounter common issues head-on as we guide you through troubleshooting techniques. Our expert insights ensure that your audio upgrade journey is free from glitches and complications.

Optimizing DIY Potential

DIY Potential

Empower yourself with the knowledge to optimize your Do-It-Yourself potential. We shed light on the tools and techniques needed for a successful audio system enhancement.

Compatibility with Aftermarket Radios

Aftermarket Radios

Navigate the landscape of aftermarket radios effortlessly. Our journalistically presented insights ensure that your chosen radio seamlessly integrates with your 2013 Ford Focus.

Essential Tools of the Trade

Tools

Equip yourself with the essential tools needed for a successful radio wiring adventure. Our curated list ensures that you have everything at your fingertips to achieve audio excellence.

Upgrading Your Sound System

Sound System Upgrade

Transform your driving experience by upgrading your sound system. Our journalistic perspective guides you through the process, ensuring that your car becomes a mobile concert hall.

The Heartbeat of Your Drive: Understanding the 2013 Ford Focus Radio Wiring Diagram

Embarking on the journey of upgrading your car's audio system is akin to unlocking the heartbeat of your drive. The 2013 Ford Focus, a marvel of automotive engineering, comes to life not just on the road but also through the symphony of its audio components. In this empathic exploration, we delve deep into the intricacies of the 2013 Ford Focus radio wiring diagram, unraveling the threads that connect us to the soul-stirring rhythm of our daily commute.

Navigating the Sonic Landscape

Sonic Landscape

Picture your car as a canvas, and the audio system as the artist that paints emotions through sound. To understand and navigate this sonic landscape, the 2013 Ford Focus radio wiring diagram serves as your empathic guide. It lays bare the intricate connections that translate electrical impulses into a melody that resonates within the confines of your car.

Connecting with Color: Decoding Wire Colors

Decoding Wire Colors

At the heart of this exploration lies the decoding of wire colors. Like a painter selecting the right hues, understanding the significance of each color simplifies the connection process. The 2013 Ford Focus radio wiring diagram ensures that you connect with each wire, appreciating its role in creating a harmonious blend of sounds within your vehicle.

A Symphony in Steps: Guided Wiring Instructions

Guided Wiring Instructions

Guided by the symphony in steps, the wiring instructions in the diagram transform a potentially daunting task into a musical composition. Each step, carefully articulated in the 2013 Ford Focus radio wiring diagram, orchestrates the elements of your audio system, ensuring a seamless integration that resonates with perfection.

Troubleshooting Harmonies: Common Wiring Issues Demystified

Troubleshooting Harmonies

However, even in the most beautiful symphonies, there might be a discordant note. In the world of radio wiring, issues can arise. The empathic touch of the 2013 Ford Focus radio wiring diagram demystifies these common problems, turning troubleshooting into a process of restoring harmonies to your driving experience.

Empowering DIY Melodies

Empowering DIY Melodies

Empathy extends beyond understanding to empowerment. Armed with the knowledge from the 2013 Ford Focus radio wiring diagram, you become the composer of your car's audio symphony. This section empowers you with the tools and insights needed to craft DIY melodies, turning your car into a personalized musical haven.

The Dance of Compatibility: Ensuring Harmony with Aftermarket Radios

Ensuring Harmony with Aftermarket Radios

As you explore the dance of compatibility, the 2013 Ford Focus radio wiring diagram provides a graceful waltz with aftermarket radios. It ensures that the new additions seamlessly integrate into the existing orchestra of your car's audio system, creating a harmonious and upgraded driving experience.

Tools of the Audiophile: Essential Instruments for the Journey

Essential Instruments

Just as a musician cherishes their instruments, an audiophile values their tools. This section explores the essential instruments needed for your audio journey. The 2013 Ford Focus radio wiring diagram guides you in assembling the toolkit required to transform your car into a concert hall on wheels.

Elevating Your Drive: The Art of Sound System Upgrade

Sound System Upgrade

In the grand finale, we ascend to the crescendo of upgrading your sound system. The 2013 Ford Focus radio wiring diagram, as your empathic guide, ensures that every step towards enhancement is taken with precision. Elevate your drive as you transform your car into a rolling masterpiece of audio excellence.

In conclusion, the 2013 Ford Focus radio wiring diagram is not just a technical guide; it is a narrative that speaks to the emotional connection we forge with our vehicles. With an empathic touch, this exploration into the sonic realm invites you to not only understand but to feel the pulsating rhythm that defines your drive.

Another point of view about 2013 FORD FOCUS RADIO WIRING DIAGRAM.

1. The 2013 Ford Focus radio wiring diagram stands as a crucial document for understanding the intricacies of the vehicle's audio system.This comprehensive diagram provides a detailed mapping of the wiring configuration, offering a visual representation of the connections between various components.In the academic perspective, studying the diagram facilitates a deeper comprehension of the electrical pathways that govern the transmission and reception of audio signals within the vehicle.Each color-coded wire represents a specific function, and understanding this coding system is fundamental to the successful interpretation and implementation of the wiring diagram.The diagram serves as a foundational tool for both automotive enthusiasts and technicians, guiding them through the process of installation, troubleshooting, and potential upgrades.Academic analysis of the 2013 Ford Focus radio wiring diagram reveals the systematic approach employed in its creation, ensuring clarity and precision in conveying complex electrical information.For scholars in automotive engineering or related fields, the diagram serves as a practical case study in the application of electrical principles within the context of a modern vehicle.Through a scholarly lens, the diagram underscores the importance of standardized documentation in facilitating a common understanding among professionals in the automotive industry.Academic discourse surrounding the 2013 Ford Focus radio wiring diagram emphasizes its role as a knowledge transfer tool, enabling a seamless exchange of information between designers, engineers, and technicians.In conclusion, the academic examination of the 2013 Ford Focus radio wiring diagram reveals its significance as not merely a technical guide but as a foundational element in the broader discourse of automotive engineering and technology.

Conclusion : Unlock the Beats: 2013 Ford Focus Radio Wiring Diagram Decoded!.

As we conclude our exploration into the enchanting world of the 2013 Ford Focus radio wiring diagram, let's take a moment to appreciate the symphony that awaits you. This isn't just a technical guide; it's a ticket to unlocking the creative potential within your vehicle. The intricacies of wires and colors may seem daunting at first, but fear not, for each connection is a brushstroke in the canvas of your driving experience.

With the 2013 Ford Focus radio wiring diagram as your artistic guide, you now possess the key to transform your car into a personalized soundstage. As wires intertwine and colors harmonize, your vehicle becomes more than just a mode of transportation; it becomes a creative extension of your personality. So, embark on this journey with confidence, let the beats guide you, and revel in the masterpiece that unfolds every time you turn the key. Your car, your canvas, and the 2013 Ford Focus radio wiring diagram is your brush – now, paint your sonic masterpiece!

Question and answer Unlock the Beats: 2013 Ford Focus Radio Wiring Diagram Decoded!

Questions & Answer :

Q: What is the purpose of the 2013 Ford Focus radio wiring diagram?

  • A: The 2013 Ford Focus radio wiring diagram serves as a visual guide to the electrical connections within the car's audio system. It helps users understand the wiring configuration, facilitating tasks such as installation, troubleshooting, and potential upgrades.

Q: How can the diagram benefit a non-expert in car electronics?

  • A: Even for those without an extensive background in car electronics, the 2013 Ford Focus radio wiring diagram is designed for accessibility. It uses color codes and straightforward labels, making it user-friendly for non-experts to navigate and comprehend.

Q: Is it necessary to refer to the wiring diagram when installing an aftermarket radio?

  • A: Absolutely. The 2013 Ford Focus radio wiring diagram becomes particularly crucial when integrating aftermarket radios. It ensures a seamless connection between the new radio and the existing wiring system, preventing compatibility issues and ensuring optimal performance.

Q: Can I use the wiring diagram for DIY modifications?

  • A: Certainly! The diagram empowers DIY enthusiasts by providing a clear roadmap for modifications. Whether you're upgrading speakers, adding amplifiers, or tweaking the system, the 2013 Ford Focus radio wiring diagram is your go-to guide for a personalized audio experience.

Q: How often should I refer to the wiring diagram for routine maintenance?

  • A: While not needed for routine maintenance, the 2013 Ford Focus radio wiring diagram can be a handy reference if you encounter audio issues. It aids in identifying and resolving wiring-related issues, ensuring your car's audio system stays in top-notch condition.

Keywords : 2013 FORD FOCUS RADIO WIRING DIAGRAM

0 komentar